B - 30 Spence Avenue Springwater, Ontario L0L 1X1

5,000 ft2
Fully Air Conditioned Forced Air

$18 / ft2

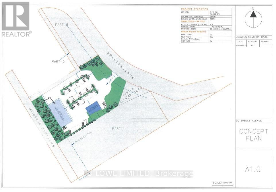
5000 s.f. in a brand new 8500 sf building to be built for Lease with great exposure to Bayfield St N (Hwy 26) just outside of Barrie before the split of 26/27 to Collingwood or Elmvale/Midhurst. General Commercial CG-37 Zoning permitting retail/commercial/office uses. Ideal for Nursery School/daycare with outdoor play area possible, take-out restaurant, fitness studio or medical clinic, professional office, destination retail store or personal service shop and many more. See linked feature sheet for zoning. Can be demised 1000 s.f. - 8500s.f. $18.00/s.f./yr & est. TMI @ $8.00/s.f./yr. (id:64507)

Property Details

MLS® Number S12801302
Property Type Retail
Community Name Midhurst

Building

Cooling Type Fully Air Conditioned
Heating Fuel Natural Gas
Heating Type Forced Air
Size Interior 5,000 Ft2
Utility Water Municipal Water

Land

Acreage No
Sewer Septic System
Size Depth 387 Ft
Size Frontage 192 Ft
Size Irregular 192 X 387 Ft
Size Total Text 192 X 387 Ft
Zoning Description Commercial

https://www.realtor.ca/real-estate/29376951/b-30-spence-avenue-springwater-midhurst-midhurst

Contact Us

Contact us for more information

Generating Captcha

Ed Lowe Limited
47 Mills Road #6
Barrie, Ontario L4N 6H4

(705) 726-3871
(705) 726-8260
edlowerealestate.com/

Ed Lowe Limited
47 Mills Road #6
Barrie, Ontario L4N 6H4

(705) 726-3871
(705) 726-8260
edlowerealestate.com/

Your Favourites

 

No Favourites Found